За да свържете абсорбатора към вентилационната система, огънете гофрираната тръба на изхода на кухненския шкаф и поставете края ѝ във вентилационната шахта. Могат да се използват пластмасови съединители за тръби. Уплътнете съединенията със силикон. Когато са напълно уплътнени, ефективността на вентилационната система ще бъде 100%.
Свързването на аспиратора към вентилацията в кухнята се извършва с с помощта на пластмасов въздуховод или алуминиево гофриране.
По време на монтажа вземете предвид следното: вид на абсорбатора, вентилационни характеристики, захранване, размер на помещението и площ на котлона. За безопасност инсталирайте защита срещу ток и заземяване.
- Нека разгледаме видовете и принципите на работа
- Класификация на абсорбаторите
- Критерии за избор на изпускателно оборудване
- Проверка на вентилационния канал
- Маркиране
- Характеристики на монтажа в зависимост от вида на закрепването
- Как сами да се свържете към вентилационен канал
- Стъпки за самостоятелно свързване на абсорбатор
- Заземяване и неутрализация, монтаж на контакти
- Монтиране на захранващ клапан
- Законно ли е свързването на кухненски абсорбатор към обща вентилационна система на къщата?
- Кухненски абсорбатор без вентилационна връзка
Нека разгледаме видовете и принципите на работа
В жилищна сграда вертикалната вентилационна шахта започва в сутерена и се простира до покрива. Всеки апартамент завършва с решетка.
В сградите се предлагат три вида вентилация:
- Естествен отток на въздух поради разлики в налягането в мините.
- Вентилаторите с принудителна тяга осигуряват подаване и изсмукване на въздух. При самостоятелна система вентилаторът работи на фасадата на сградата. Монтирани са захранващи клапани. При централизирана мрежа, захранващите и изпускателните агрегати осигуряват денонощна тяга в цялата сграда.
- Комбинирани опции. Въздухът се подава принудително и се изсмуква естествено през шахтата. При втория вариант въздухът влиза през прозорците и се изсмуква с помощта на вентилатори.
Самостоятелното свързване на абсорбатор нарушава стандартната вентилация. По време на монтажа се пробива отвор, но напречното сечение на вала остава същото. За подобряване на циркулацията на въздуха се монтира клапа. Тя блокира обратната тяга, когато абсорбаторът работи. След като абсорбаторът е изключен, клапата се отваря.
Не знам какъв модел Кой е най-добрият кухненски абсорбатор с вентилационна връзка?, предлагаме ви да се запознаете с рейтинга.
Класификация на абсорбаторите
При монтажа вземете предвид вида, характеристиките и начина на монтаж. Изпускателните системи работят в два режима на почистване.
- Принудително изсмукване – замърсените въздушни потоци се насочват през тръба от помещението в шахтата. Абсорбаторите с проточен въздух се характеризират с висока производителност.
- Циркулация на потоците – въздушните маси преминават през въглеродни филтри.
Кухненските абсорбатори с вентилационна връзка се монтират с два вида извивки.
| Вид отклонение | Плюсове | Недостатъци |
| 1. Въздуховод, изработен от пластмаса (PVC) | Предлага се под формата на гъвкава тръба или тесни елементи. Има естетически приятен външен вид, компактен е и може да се монтира без допълнителен корпус. PVC тръбата не издава шум и не се съпротивлява въздушни течения. | Сглобяването е сложно и по-скъпо от това на гофрираните тръби. Твърдите пластмасови кутии бръмчат и вибрират. |
| 2. Алуминиева тръба (гофрирана) | Материалът е лесен за самостоятелно монтиране. Огъва се, за да пасне на всеки отвор. Безшумен е. | Не е естетически приятен външен вид. |
Плоските, компактни устройства с филтър са лесни за инсталиране без свързване към основната вентилационна система, но имат ниска мощност. Куполообразните „чадъри“ са най-мощните устройства.
Производителите произвеждат абсорбатори за камини със стенни монтажи, ъглови абсорбатори за ъглови печки и островни абсорбатори с таванни монтажи за печки, разположени в центъра на голяма стая. Материалът е неръждаема стомана или емайлирана стомана, а по-рядко пластмаса. За малки пространства като кухни те създават... вградени прибиращи се панели с тръба.
Може би ще е интересно - Как инсталирайте сами капака (рециркулация, комбинирана или канална) в кухнята.
Критерии за избор на изпускателно оборудване
Преди покупка е важно да се даде приоритет на комфорта или спестяванията. Дизайнът, мощността, звукоизолацията и възможностите за регулиране оказват значително влияние върху цената. Изборът се основава на четири ключови критерия.
- Мощност. Определянето на това ще изисква изчисление въз основа на размерите на стаята.
- Шум. Включете устройството, за да оцените нивото на шум. За апартамент се препоръчва ниво на шум до 50 dB. Безшумните модели са оборудвани с три вентилатора или звукопоглъщащ корпус.
- Материал и вид на въздуховода.
- Допълнителни аксесоари: лампи за осветяване на работната зона, автоматично включване едновременно с печката, таймер за спиране по време, контролен панел.
Някои модели се предлагат с избор на режими на работа. Ако планирате да закупите рециркулационен агрегат, струва си да изберете такъв с индикатор за запушване на филтъра.
Как се определя мощността и производителността на устройството? Изчислението може да се извърши чрез изчисляване на обема на пречистения въздух за 60 минути. Според руските стандарти циркулацията на въздуха трябва да се осъществява 12 пъти на час. За да се изчисли мощността, използвайте следната формула:
S (площ на помещението) * H (височина на стената) * 12 = M
Например, каква мощност е необходима за кухня с площ от 8 м2, със стени с височина 2,8 м?
8 * 2,8 * 12 = 268,8 м3.
Ако се планират завои в тръбата или дълга шахта, добавете 30%. Като вземем предвид загубата на мощност, получаваме:
268,8 м3 * 1,3 = 350 м3.
Проверка на вентилационния канал
Преди да започнем работа, проверяваме функционалността на канала. Придържаме лист хартия към решетката. Ако системата работи правилно, тя пръчкиАко хартията не лепне, има запушване във вентилационната шахта. Възможно е тя да е и частично срутена. Жителите често сами чупят канала, за да освободят повече място.
Извършете втора проверка с отворени прозорци. Ако чаршафът не залепва, няма течение, така че шахтата трябва да се почисти или ремонтира.
Маркиране
Разстоянието от котлона е посочено в инструкциите. Когато маркирате, маркирайте центъра на котлона. Абсорбаторът трябва да бъде разположен по тази ос. Различните котлони имат различна височина на монтаж.
Долната граница не трябва да се увеличава поради високи температури или, с други думи, за да се предотврати топенето на изпускателната система. Горната граница се оптимизира въз основа на ръста на човека, който ще използва системата. Важно е да се свърже с вентилационния канал с минимален брой извивки. Всяка извивка в тръбата намалява тягата с 10%.
Прочетете също: видове вентилация в кухнята, как да го подредите сами.
Характеристики на монтажа в зависимост от вида на закрепването
Гледайте видеото: Как сами да инсталирате кухненски уред
Стенните абсорбатори с плосък панел не са свързани към въздуховодите. Те се доставят с монтажни елементи за долната част на шкафа. Маркирайте местата за монтаж с молив. Пробийте отворите. Отстранете филтрите, за да се видят монтажните отвори. Сглобете и прикрепете елементите. Проверете абсорбатора с нивелир. Остава само да го свържете към електрическия контакт.

Вградените абсорбатори се монтират в стенен шкаф над печката или на рафт в кухнята. За тестово монтиране корпусът се поставя в шкафа. Разстоянията се измерват, проверяват се с нивелир и се центрират. Ако монтирането е успешно, местата на отворите се маркират. Шкафът се отстранява и се пробиват отвори за вентилационния отвор.
Островните агрегати се монтират на тавана, за да създадат тяга. Ако въздуховодът не достига до вентилацията, може да се монтира отделно рециркулационен изпускателен агрегат. Независимо от вида на оборудването, е важно да се създаде директен път към шахтата без никакви прегъвания.
И ако инсталирането на оборудването ще се извършва самостоятелно, тогава на този етап трябва да обърнете специално внимание.
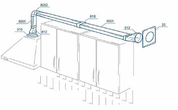
Как сами да се свържете към вентилационен канал
Ще ви трябват гофрирана тръба (кутия), решетка, вентил и инструменти. За директно свързване гофрираният канал се подравнява с вентилационния канал. За чиста връзка се монтира кръгла решетка. Гофрираната тръба може да наруши външния вид на кухнята. Тя може да бъде скрита в кутия или канал за гипсокартон.
Прочетете статията за Гофрирани тръби и тяхното приложение в кухненските изпускателни системи.
Гледайте видеото: Как сами да инсталирате кухненски абсорбатор
Комплектът включва ъгли, адаптери, стенни панели и крепежни елементи. Важно е правилно да се изчисли размерът на пластмасовата конструкция. Фугите и връзките са запечатани с уплътнител.
Стъпки за самостоятелно свързване на абсорбатор
Монтирането на вградено оборудване в шкафовете е по-сложно. За да завършите работата правилно, следвайте тези стъпки.
Изработваме или закупуваме възвратен клапан (клапа).
- Поставяме корпуса в шкаф над електрическата или газовата печка в кухнята. Закрепваме го на място и запечатваме всички фуги с уплътнител или специална пяна. Залепваме корпуса към шкафа, за да неутрализираме резонанса. Монтираме дъската за клапване. Маркираме отворите на шкафа.
- Извадете шкафа. Използвайте прободен трион, за да изрежете излишния материал по маркировките в долния стек и, ако е необходимо, във вътрешните рафтове.
- Свързваме въздуховода. Подрязваме гофрираната тръба, оставяйки малко излишък. Подрязваме ъглите и ги огъваме навън. Запълваме фугите със силиконов уплътнител.
- Монтираме кутия над кухненския шкаф, за да свържем гофрираната тръба с вентилационната шахта. Запълваме фугите със силикон и уплътняваме по-големите фуги с пяна.
- Закрепваме абсорбатора с винтове или дюбели. Поставяме кухненския шкаф.
- Закрепваме гофрираната тръба към капака със специална скоба. Връзките са запечатани с уплътнител.
Заземяване и неутрализация, монтаж на контакти
Поверете тази работа на електротехник! Когато монтирате абсорбатора, свържете го, използвайки три проводника: фаза, заземяване и нула. Заземяването предпазва от пренапрежения. Това е жълтият проводник със зелена ивица.
Ако имате контакти по европейски стандарт, използвайте заземителен контур. Кабелът се свързва към клеми с ивици или маркирани с "Заземяване" (GND). Ако няма заземителен конектор, такъв може да се направи от проводник, свързан към метална част на корпуса.
Не всички апартаменти имат контакти в европейски стил. За заземяване проводникът се свързва с плътен неутрален проводник в тръба или шина под електрическия панел. Нулевите проводници са разположени на щифт. От него се извежда многоканален кабел (с напречно сечение най-малко 2,5 мм).2). Абсорбаторът е свързан към прекъсвач 6,3 A.
Опасност! Не разкачайвайте проводниците, свързани към заземителната система. Поставете новия проводник върху старите и го затегнете с гайка. Върху гладка повърхност можете да закрепите контактите със скоба. Ако не сте експерт, консултирайте се с професионалист!
Когато избирате контакт, имайте предвид, че повечето абсорбатори имат трижилен кабел. Поставете контакта в кухнята над шкафовете на височина два метра. Той не трябва да се намира близо до мивката или печката, нито да е закриван от уреди. Ако е на показ, скрийте контакта в специална кутия.
Монтиране на захранващ клапан
При монтаж на захранващ клапан, общата вентилация на сградата не трябва да бъде блокирана. Затова се монтира решетка с клапан и място за закрепване на въздуховода. Вместо решетка е подходящ възвратен клапан с механизъм против връщане.

Когато подготвяме отворите за абсорбатора, сами изрязваме квадрат в горната стена на шкафа, като добавяме 3-5 мм надбавка за клапата. Монтираме възвратен клапан във вентилационния отвор. обработваме ръбовете с уплътнител.
Законно ли е свързването на кухненски абсорбатор към обща вентилационна система на къщата?
Строителите на по-стари високи сгради не са предвидили, че бъдещите жители ще инсталират изпускателни системи много години по-късно. Затова не са предвидили индивидуални вентилационни канали за кухните. Свързването на изпускателни системи в такива сгради променя налягането в системата. Хората готвят или пушат в апартамента и миризмите се разнасят до съседите. Какво казва законът по въпроса?
СНиП 41.01.2003 позволява комбинирането на различни методи за вентилация. Смесени системи могат да съществуват едновременно с естествена и механична вентилация. Допуска се свързване към отделен вентилационен канал на апартамент.
Ако цялата система функционира правилно, никакви чужди миризми не би трябвало да достигат до съседите. Проблеми възникват поради грешки при монтажа. Законността на връзката е без съмнение, но предварително трябва да се извика специалист по вентилация.
Кухненски абсорбатор без вентилационна връзка

Филтрираните абсорбатори имат ниска производителност. За да увеличите мощността, можете сами да инсталирате допълнителен вентилатор във въздуховода. Инсталирайте адаптери и захранващ кабел. Вграденият вентилатор може евентуално да бъде заменен с външен, който може да произвежда до 2000 м³.3/ч.
Кухните са оборудвани с устройства за регулиране на въздушния поток, като например вентилатори за прозорци и вентилатори. В по-старите сгради, запечатаните прозорци и врати възпрепятстват естествената вентилация. Губи се течение и се натрупват мухъл и влага. Вентилатор се монтира на прозорец или стена. Той пропуска ограничено количество въздух, създавайки здравословен вътрешен климат.










Ще покажа тази статия на съпруга ми. Планираме ремонт и ще монтираме абсорбатор. Надявам се, че ще се справи сам. Особено след като всичко е описано подробно.
Струваше си да потърся информация за монтаж на абсорбатор. Дори не се бях сетил да проверя вентилационния канал, но се оказа, че моят е запушен (не засмуква въздух). Ще трябва да се справя с това отделно. Иначе монтажът не ми се струва чак толкова страшен и мога да го направя сам.
Искам да купя
Как да се сдобия